Town file: HKA-01/25
In accordance with the provisions of the Planning Act, this is to advise that a statutory public meeting has been scheduled by the Town of Milton’s Development Services Department to discuss proposed housekeeping amendments to the Town’s Comprehensive Zoning By-law 016-2014, as amended, and Comprehensive Zoning By-law 144-2003, as amended, for lands located within the Urban and Rural Areas, respectively.
Meeting details
Members of the public are invited to provide input at the statutory public meeting.
Date: Monday, Dec. 8, 2025
Time: 7 p.m.
Place: Council Chambers, 150 Mary St., Milton
Review the draft housekeeping amendments before the public meeting.
A decision about the application will be made by Milton Council at this meeting.
Application details
Town of Milton’s Development Services Department has initiated a series of housekeeping amendments that will amend various parts of the Town’s Urban Zoning By-law 016-2014, as amended, and Rural Zoning By-law 144-2003, as amended, for the purpose of updating, clarifying, and correcting various provisions and regulations within the By-laws.
Comprehensive Zoning By-law 016, 2014, as amended
The purpose and effect of the proposed housekeeping amendments relating to regulations and provisions of Comprehensive Zoning By-law 016-2014, as amended, is:
To revise the following:
- The definition of “Lot”
- The minimum off-street parking requirements for Mixed Use buildings within an MU (Mixed Use) Zone
- Numerical references to footnotes under and within Table 7A - Permitted Uses in Central Business District Zones
- the “H82” holding provision reference to “H91” in Section 13.2.1.141 and in the holding symbol descriptions listed at the beginning of Section 13.2
- Section 13.2.1.114 to clarify how holding Zones will be applied in the Milton GO / MTSA and to allow some expansion to legally existing non-residential uses in the area prior to the removal of holding provisions
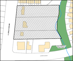
- The NHS*337 (Natural Heritage System Site-Specific) Zone boundary on the lands municipally known as 485, 501 and 511 Ontario Street South (location shown in map).
To add the following:
- Provisions that describe how the Zoning By-law will be administered for different types of condominium developments
To delete the following:
- The “Service Retail Office” use in its entirety from Table 7A – Permitted Uses in Central Business District Zones
Since most of the above noted changes are general in nature and apply to all lands in the Urban Area, no key map has been provided for the Urban Area except for the site-specific revision proposed for 485, 501 and 511 Ontario Street South.
Comprehensive Zoning By-law 144-2003, as amended
The purpose and effect of the proposed housekeeping amendment relating to regulations and provisions of Comprehensive Zoning By-law 144-2003, as amended, is:
To revise the following:
- provisions for the parking of oversized motor vehicles in the Rural Zones and Greenlands Zones
- Given that the proposed revision applies to all lands within the Rural Area, no key map has been provided.
- View the report to Council on or after Tuesday Dec. 2, 2025, at www.milton.ca/CouncilAgenda.
Get involved
The community is invited to attend and participate in the statutory public meeting. This meeting will be held as a hybrid meeting with members of the public having the opportunity to participate in-person at Town Hall or electronically. Members of the public are also encouraged to view the meeting by watching the live stream. Should you wish to delegate to a Council meeting please complete the online delegation form by noon on Thursday, Dec. 4, 2025.
If you wish to be notified of the decision of Milton Council on the proposed zoning by-law amendment, you must make a written request to the Town Clerk, 150 Mary St., Milton ON L9T 6Z5 or by email. For a copy of the documents, please contact Development Services.
The Town of Milton is dedicated to meeting the needs of all members of the public. For documents in an alternative format such as braille, large print, electronic or plain language, contact the Town Clerk.
Contact
Any questions or concerns relating to this application, including information about appeal rights, contact Development Services.
Legal notices required under the Planning Act
If a person or public body would otherwise have an ability to appeal the decision of Milton Council to the Ontario Land Tribunal but the person or public body does not make oral submissions at a public meeting or make written submissions to the Town of Milton before the by-law is passed, the person or public body is not entitled to appeal the decision.
If a person or public body does not make oral submissions at a public meeting, or make written submissions to Milton Council before the by-law is passed, the person or public body may not be added as a party to the hearing of an appeal before the Ontario Land Tribunal unless, in the opinion of the Tribunal, there are reasonable grounds to do so.
If you have received this notice and are an owner of a property and said property contains seven or more residential units, you are required to post this notice in a location that is visible to all the residents.
Personal information is collected under the authority of the Planning Act, R.S.O. 1990, c.P. 13 and may be contained in an appendix to a staff report, published in the meeting agenda, delegation list and/or the minutes of the public meeting and made part of the public record. The Town of Milton collects this information in order to make informed decisions on the relevant issues and to notify interested parties of Council’s decisions. It may also be used to serve notice of Ontario Land Tribunal hearing. Names and addresses contained in submitted correspondence and other information will be available to the public, unless the individual expressly requests the Town to remove their personal information. The disclosure of this information is governed by the Municipal Freedom of Information and Protection of Privacy Act, R.S.O. 1990, c.M. 56. Questions about this collection and disclosure should be directed to the Planner listed above.
Jill Hogan, Commissioner
Town of Milton Development Services Department
150 Mary St., Milton, Ont. L9T 6Z5
Nov. 19, 2025
Contact Us